Inmobiliaria Paraíso Asturias
Agente: Fernando Santos
📱 +34 615-66-97-97
Horas de Oficina: 10:00 - 20:00
📧 Consulte por email aquí
Ciudad Llanes
Superficie m2 56
CEE En Trámite
Dormitorios 1
Baños 1
Garaje 0
Precio 180.000€
Piso en el centro de Llanes.
Se vende acogedor piso en pleno centro de Llanes, una de las villas más emblemáticas y demandadas de la costa asturiana.
Ubicado a pocos pasos de todos los servicios —comercios, restaurantes, transporte, puerto y playas—, este inmueble es ideal tanto como vivienda habitual, segunda residencia o inversión.
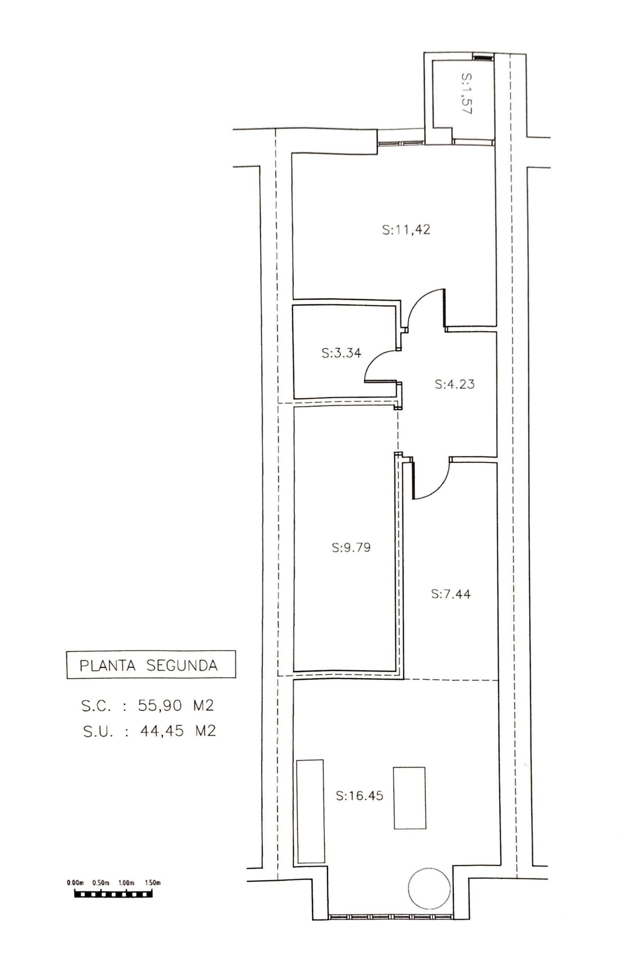
La vivienda se sitúa en una segunda planta sin ascensor y cuenta con una superficie de 56 m² construidos y 45 m² útiles, distribuidos en distribuidor, salón, cocina, baño, despensa y una habitación.
Su distribución es funcional y aprovecha bien el espacio disponible. Llanes destaca por su casco histórico, su ambiente marinero, sus playas y su excelente comunicación con el resto de Asturias y Cantabria.
Vivir en el centro permite disfrutar de todo el encanto del pueblo sin necesidad de coche, con el valor añadido de una ubicación privilegiada en una de las zonas más cotizadas del oriente asturiano.
Playa 500
Tren 500
Bus 100
Farmacia 20
Panaderia 20
Restaurante 5
Cafetería 5
Agente: Fernando Santos
📱 +34 615-66-97-97
Horas de Oficina: 10:00 - 20:00
📧 Consulte por email aquí
Ctra. General S/N Bajo 33592, Nueva de Llanes, Asturias, España. GPS, clic en enlace:
43.43792710958137, -4.940758699652861
Sitio Web
REF-703 PISO
Piso en el centro de Llanes.
Llanes
Superficie m2: 56
CEE: En Trámite
Dormitorios: 1
Baños: 1
Garaje: 0
Precio: 180.000€
Inmobiliaria
Paraíso Asturias
Fernando Santos
📱 +34 615-66-97-97
paraisoasturias@gmail.com
www.paraisoasturias.com
Ctra. General S/N Bajo 33592, Nueva de Llanes, Asturias, España